NATIVE LANDSCAPE DESIGN

Commercial Portfolio

PORTFOLIO

Public Designs

Native Landscape Design works with government, the private sector and creative professionals.

The increased emphasis at local and national level on the importance of the environment, green spaces, sympathetic and aesthetically pleasing development means that the provision of landscaping details are high on the agenda when it comes to approval of planning applications.

Landscape architects are involved in transforming run down environments as well as enhancing, improving and conserving our natural and built environment, creating inspiring places to live, work and relax.

Wirral Landscapers 1

The Manor

Wirral Landscapers 2

Cart & Horses

Wirral Landscapers 3

Belvedere

Wirral Landscapers 4

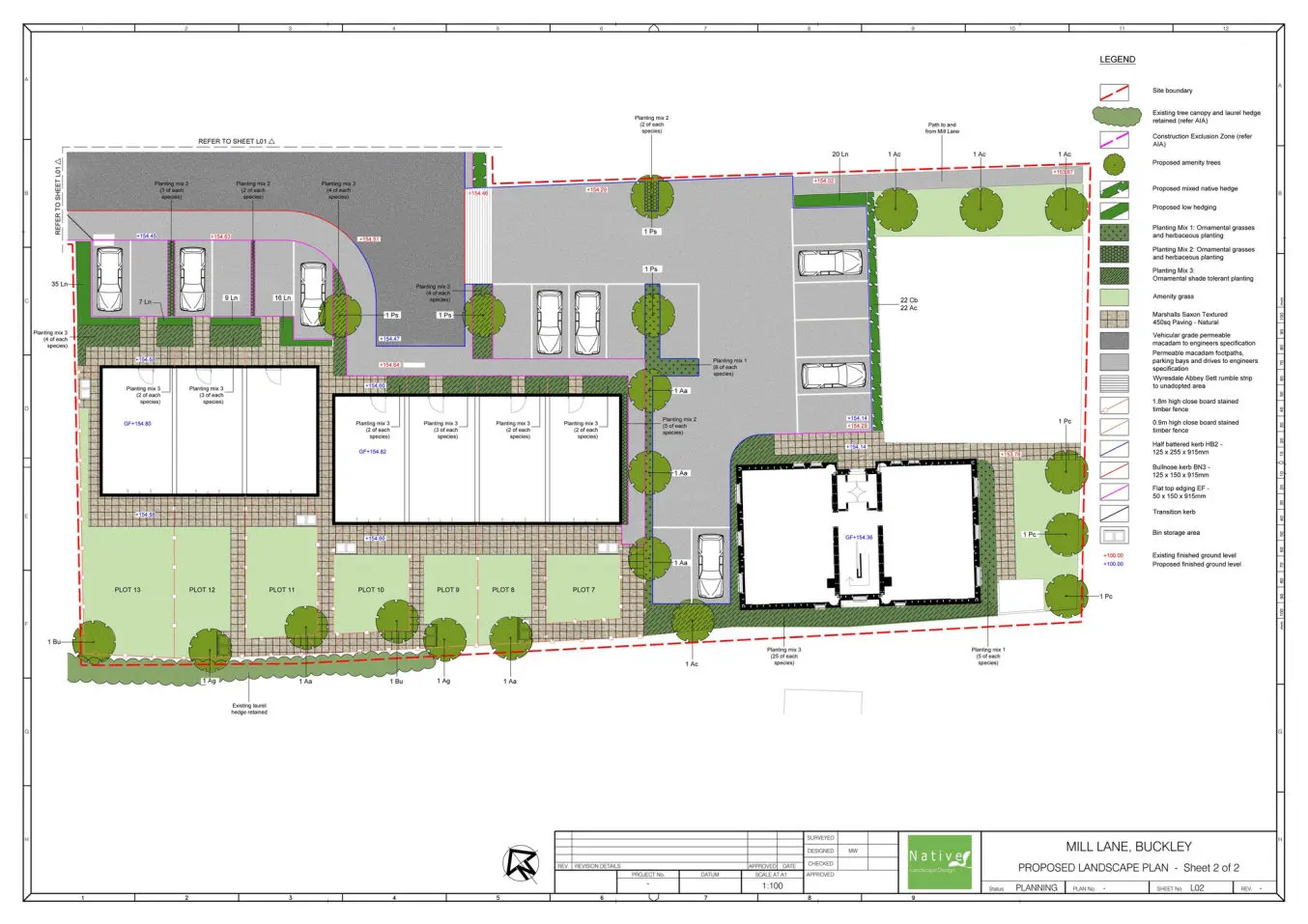
Mill Lane

Wirral Landscapers 5

Ronald Road

Wirral Landscapers 6

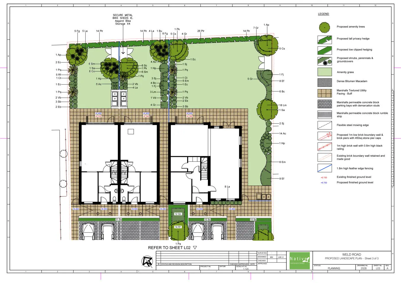
Weld Road

Wirral Landscapers 7

Wirral Womens

Wirral Landscapers 8

Glencoe

Wirral Landscapers 9

Lantana

Wirral Landscapers 10

Bingara Gorge

Wirral Landscapers 6

Breakfast Point

Wirral Landscapers 7

Allotment